All dimensions are bespoke

Banquette / Booth Seating

Bespoke Bench Seating Designed & Built to Fit Your Venue.

Bespoke Commercial Seating, Tables & Interior Fit-Out 

Designed & Manufactured in the UK 

 

Looking for high-quality bespoke banquette seating, custom tables or a complete commercial interior fit-out? 

At LEATHER CENTRE FURNITURE Ltd., we design, manufacture and install made-to-measure commercial interiors for restaurants, bars, cafés, hotels, lounges and retail spaces across the UK. 

From fixed bench seating and restaurant booth seating to bespoke tables, wall panelling and full interior fit-outs — everything is built to order at our Oldham manufacturing facility. 

Call 07869306560 to discuss your project with our team. 

 

Planned out using diagrams and 3D technology

Planned Using Technical Drawings & 3D Visualisation 

Attention to detail defines professional commercial interiors. 

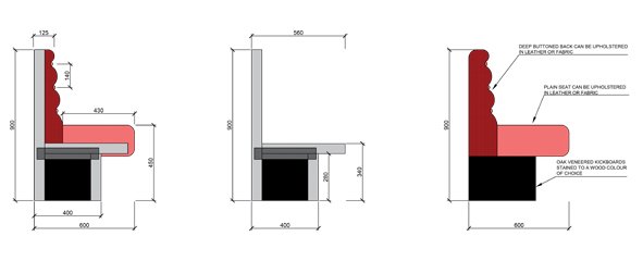
Where required, our team prepares detailed 2D technical drawings and cross-sections outlining precise dimensions, structural build-up and upholstery specifications for your seating, tables or wall features. 

We can also provide 3D visualisations based on your floor plans, allowing you to see how your banquette seating, bespoke tables or interior layout will look before production begins. 

This structured planning approach ensures accuracy, smooth installation and full confidence before manufacturing starts. 

To arrange a consultation or site survey, call 07869306560. 

Bespoke banquette seating shapes and sizes to suit your venue

Every venue has its own flow, brand identity and spatial challenges. That is why we create fully tailored solutions rather than standard products. 

Our bespoke services include: 

Custom banquette seating, restaurant booth seating, curved and high-back fixed seating, made-to-measure commercial tables, feature wall panels, upholstered wall systems and complete interior joinery. 

Whether you require elegant booth seating for a restaurant, statement tables for a hospitality space or a full interior refurbishment, we design around your exact dimensions and concept. 

We work closely with business owners, interior designers and architects to deliver cohesive commercial environments — not just furniture.